人気の鯰田小学校・飯塚第一中学校区!!建築条件付き売地になります! (No.b2214152)
価格
1,666万円 (坪単価 11.48 万円)
土地面積
公簿 479 ㎡
所在地
飯塚市鯰田2310-43 鯰田売地
物件名称
鯰田売地
交通
福北ゆたか線(折尾~桂川)浦田駅 徒歩12分 807m
福北ゆたか線(折尾~桂川)鯰田駅 徒歩18分 1,297m
福北ゆたか線(折尾~桂川)新飯塚駅 徒歩31分 2,193m
西鉄バス筑豊(株)浦田停 徒歩7分 493m
福北ゆたか線(折尾~桂川)鯰田駅 徒歩18分 1,297m
福北ゆたか線(折尾~桂川)新飯塚駅 徒歩31分 2,193m
西鉄バス筑豊(株)浦田停 徒歩7分 493m
地目
山林
都市計画
非線引区域
管理費
-
| 小学校区 | 鯰田小学校 1,550m | 中学校区 | 飯塚第一中学校 2,609m |
|---|---|---|---|
| 引渡し | 相談 | ||
| 土地権利 | 所有権 | 私道 | - |
| 接道状況 | 一方道路 方位北 幅員3.9m 公道 接面19m 接面道路は建築基準法上の道路に該当しない為、原則として建築はできません。建築する際には但し書きの許可が必要になります。 舗装あり | ||
| セットバック | 有 13.5m 13㎡ | 借地料 | - |
| 契約期間 | - | 権利金 | - |
| 条件等 | 建築条件付 | 現況 | 更地 |
| その他費用等 |
--
--
--
--
--
--
--
--
--
--
| ||
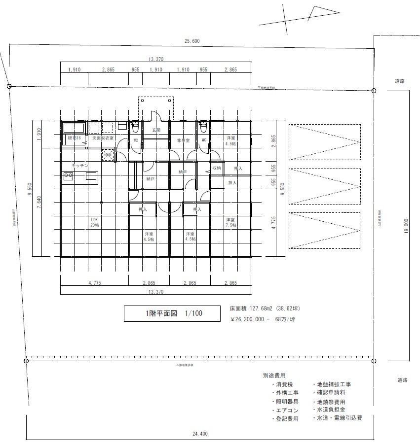
| 建ぺい率 | 60 % | 容積率 | 200 % |
| 用途地域 | 第一種住居地域 | 地勢 | 高台 |
| 最適用途 | 住宅用地 | 仲介手数料 | 価格の3%+6万円+消費税 |
| 法令制限等 | 国土法 | - | |
| 設備等 |
|
||
| 周辺施設 | |||
| 備考等 | ・この土地は建築条件付の土地になります。土地売買契約後3ヵ月以内に、(株)竹並建設と建物の建築請負契約を締結することが条件となります。なお、この期間内に建築請負契約を締結されなかった場合は、土地売買契約は白紙となり、受領した手付金等の土地代金は全てお返し致します。 (株)竹並建設 ホームページ https://irohajutaku20260201.studio.site/ ・接面道路は建築基準法上の道路に該当しない為、原則として建築はできません。建築する際には但し書きの許可が必要になります。 | ||
| 報酬形態 | - | 取引態様 | 一般媒介 |
地図 (ストリートビューへの切り替えは右下の人形のアイコンを物件付近にドロップしてください)
この物件に今すぐお問い合わせください
物件番号
No.b2214152
下記フォームよりお気軽にお問い合わせください。
お問い合わせが完了しますと、【受信確認メール】を自動送信いたします。
万が一受信確認メールが届かない場合は、ご入力のメールアドレスに誤りがあったか、迷惑メールに振り分けられているか、特定アドレス以外からのメールを受信拒否にしている可能性がございます。一度ご確認いただけますようお願い申し上げます。
担当者よりお問い合わせへの返信をさせていただきます。
